Schwedenhaus Älmhult 120

Älmhult 120 Schwedenhaus

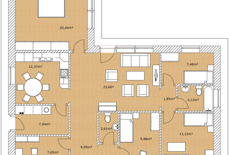
120 qm Platz für 5 Schlafzimmer

Mehr Platz zum wohnen

Dieses Modell von Älmhult bietet durch den Winkel mehr Platz als das Modell Älmhult 100. Es gibt ein weiteres Zimmer und bietet so auf 120 qm Platz für 5 Schlafzimmer. Des Weiteren bietet Älmhult 120 noch ein separates Zimmer, das sehr gut als kleines Büro oder auch als Gästezimmer genutzt werden kann. Hier wurde darauf geachtet, auf möglichst kleiner Grundfläche, viele Zimmer unterzubringen. So werden Kosten gesenkt und Komfort gewährleistet. Die große offene Wohnküche bietet viel Platz und hat einen direkten Ausgang zur Terrasse mit Blick in den Garten.

Interesse?
Fragen Sie uns einfach!

Eckdaten

  • Winkelbungalow
  • 120 m² Wohnfläche
  • Energieklasse A +
  • 5 Zimmer
  • eingeschossig

Ausstattung

  • Gäste-WC
  • Ausgang auf Terrasse

Besonderheiten

  • offenes Wohnzimmer
  • große Terrasse
  • überdachter Eingangsbereich
Aussendienst Berg Schwedenhaus GmbH

Berg Schwedenhaus GmbH

Wir planen und bauen für Sie als Familenbetrieb Ihr Schwedenhaus von A bis Z

Kontakt

Sie haben Fragen, Wünsche, Anregungen? Dann kontaktieren Sie uns. Am besten hier direkt über das Kontaktformular, ansonsten gerne per Email oder Telefon. Wir freuen uns auf Sie.

Baum 1 Baum 1 Baum 1
Natur Hintergrund
cookie