Malmö 130 Schwedenhaus

Malmö 130 Schwedenhaus

Hier finden Sie 130 wohlgeplante m², ein richtig gut durchdachtes Holzhaus.

Willkommen in unserem Haus Malmö

Die große Gaube mit Balkon und der dadurch überdachte Eingang gibt dem Schwedenhaus Malmö 130 sein Gesicht.

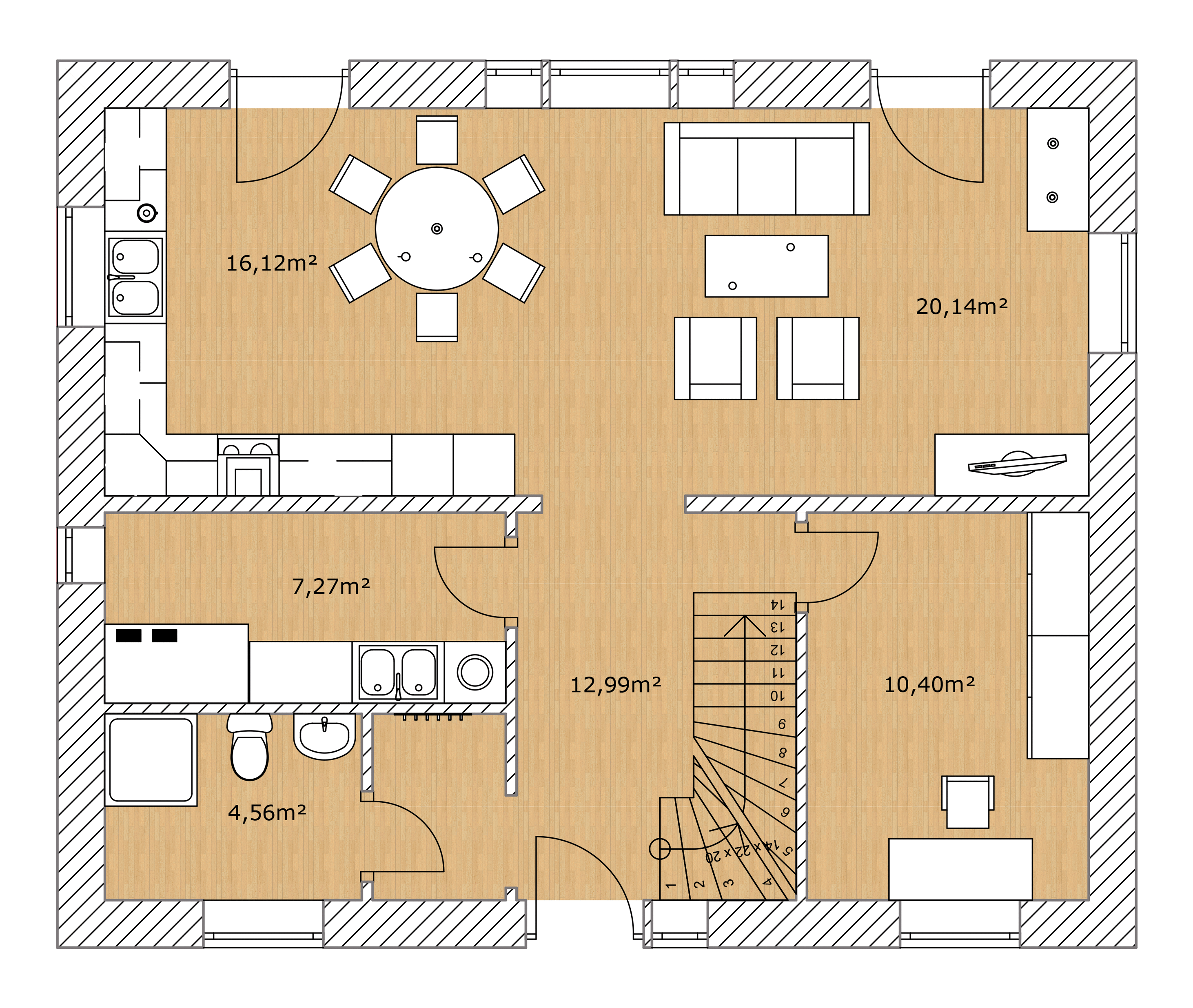
Hier finden Sie 130 wohlgeplante m², ein richtig gut durchdachtes Holzhaus. So gibt es z. B. im Flur Platz für eine Garderobe und die Schuhe - diese zieht man übrigens  in Schweden üblicherweise aus. Durch den großen Flur gelangt man in das offen gehaltene Wohnzimmer. Dort gibt es viel Platz für die ganze Familie am Esstisch oder auch gemütlich auf dem Sofa. Auf die Terrasse und dem anschließenden Garten gelangen Sie durch zwei Terassentüren.

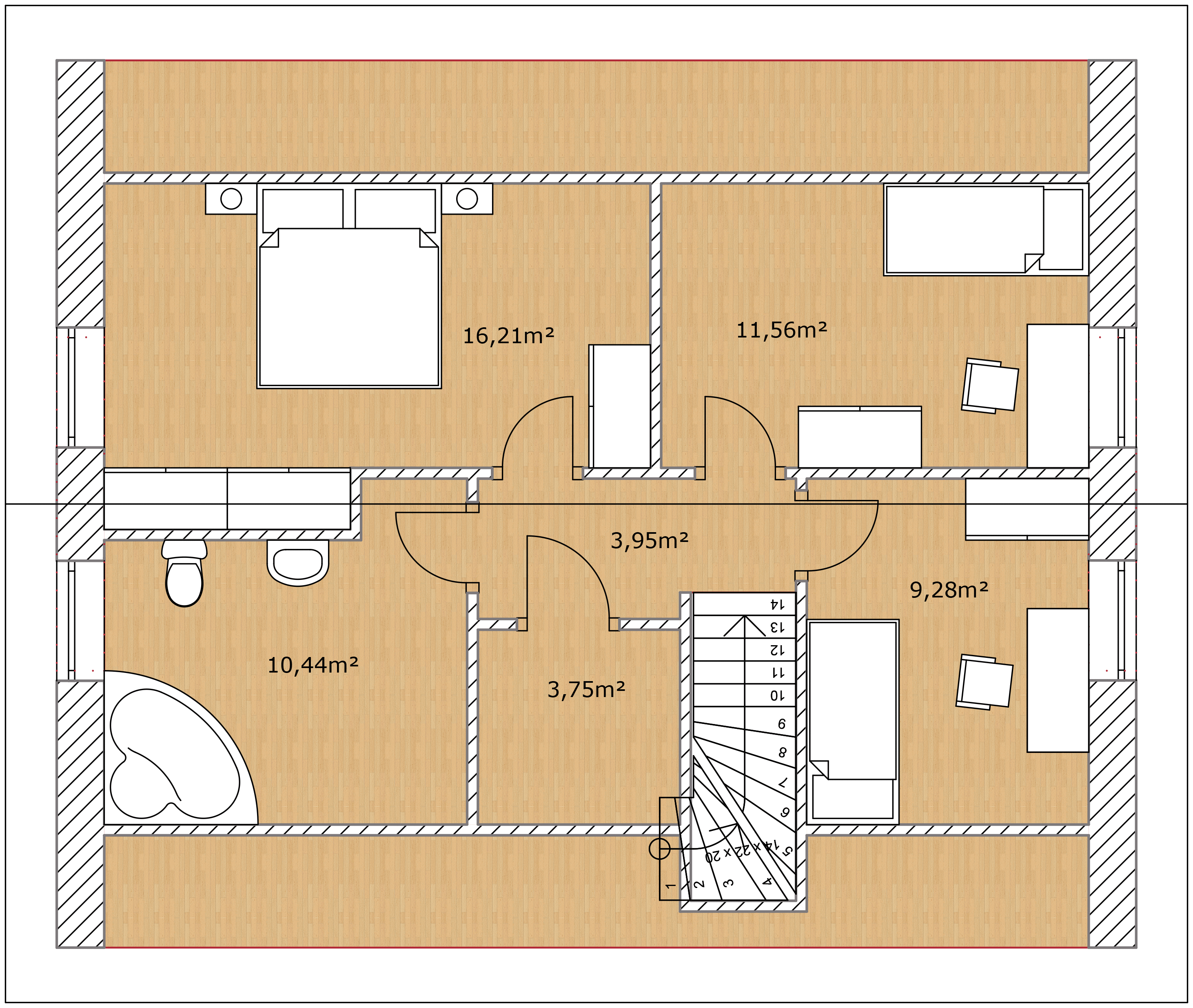
In diesem Schwedenhaus herrscht Gemütlichkeit pur. Ein kleines Büro oder auch Gästezimmer mit Gästebad und Dusche vervollständigen das Erdgeschoss. Im Obergeschoss gibt es 3 Schlafzimmer und einen Abstellraum, den man durch die Gaube zum Allrum erweitern kann.

Interesse?
Fragen Sie uns einfach!

Eckdaten

  • Satteldach
  • 130 m² Wohnfläche
  • Energieklasse: A+
  • 5 Zimmer
  • 1,5 geschossig

Ausstattung EG

  • offenes Wohn-/Esszimmer
  • Gäste-WC

Ausstattung OG

  • drei Schlafzimmer

Besonderheiten EG

  • optional Gaube mit Balkon

Besonderheiten OG

  • Abstellraum
Aussendienst Berg Schwedenhaus GmbH

Berg Schwedenhaus GmbH

Wir planen und bauen für Sie als Familenbetrieb Ihr Schwedenhaus von A bis Z

Kontakt

Sie haben Fragen, Wünsche, Anregungen? Dann kontaktieren Sie uns. Am besten hier direkt über das Kontaktformular, ansonsten gerne per Email oder Telefon. Wir freuen uns auf Sie.

Baum 1 Baum 1 Baum 1
Natur Hintergrund
cookie