Malmö 160 Schwedenhaus

Malmö 160 Schwedenhaus

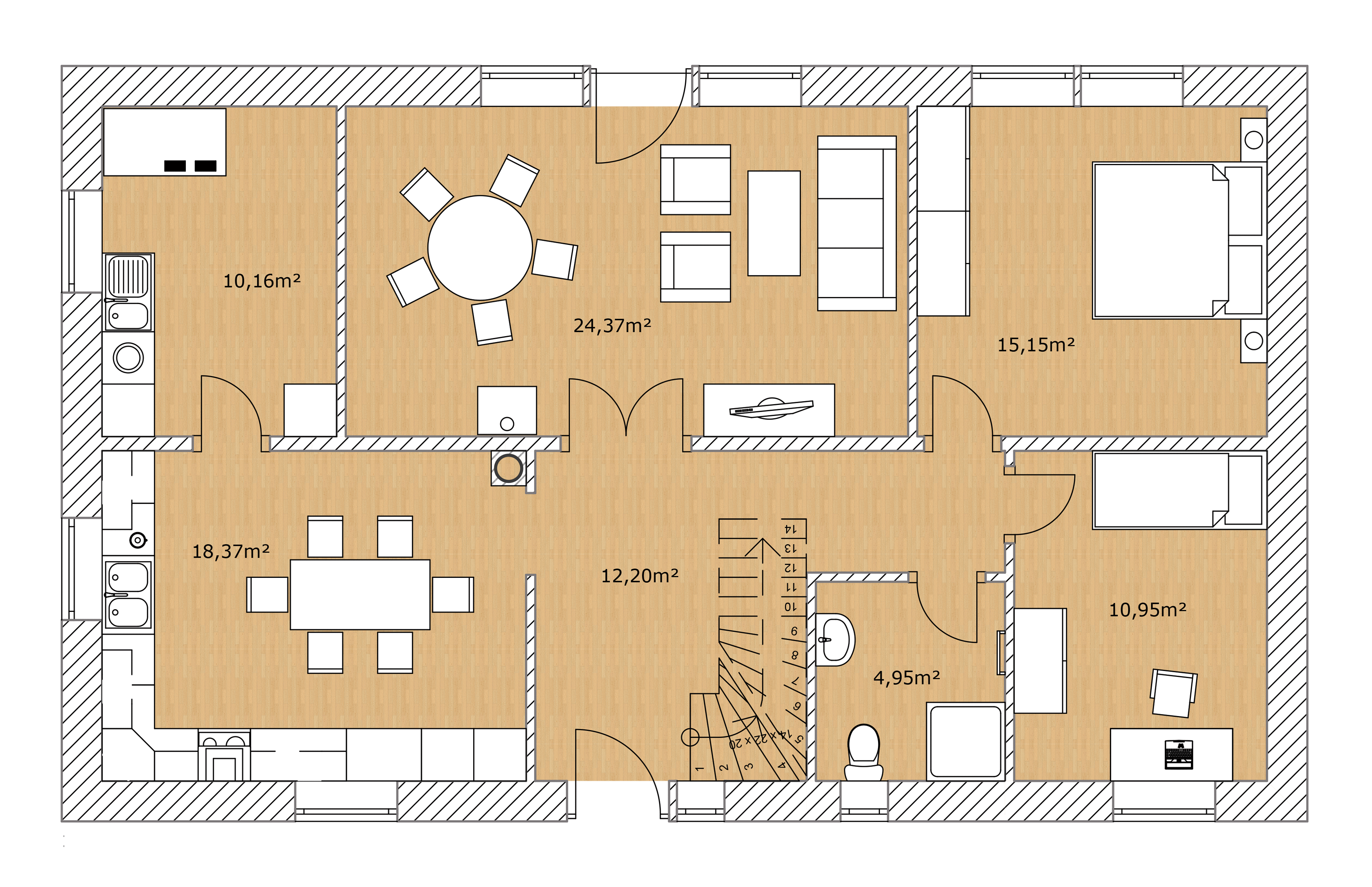
Fünf Schlafzimmer und einem Gemeinschaftsraum im Obergeschoß

Das Haus für die große Familie

Dieses große Schwedenhaus überzeugt mit fünf Schlafzimmer und einem Gemeinschaftsraum im Obergeschoß. Dazu kommt noch eine abgeschlossene Küche.

Interesse?
Fragen Sie uns einfach!

Eckdaten

  • Satteldachhaus
  • 160m² Wohnfläche
  • Energieklasse: A+
  • 6 Zimmer
  • 1,5 geschossig

Ausstattung EG

  • 2 Schlafzimmer im EG
  • Badezimmer
  • Große Wohnküche

Ausstattung OG

  • 3 Schlafzimmer im OG
  • Badezimmer

Besonderheiten EG

  • Eingangsveranda
  • überdachter Eingang
  • Gäste-WC

Besonderheiten OG

  • Gemeinschaftsraum
Aussendienst Berg Schwedenhaus GmbH

Berg Schwedenhaus GmbH

Wir planen und bauen für Sie als Familenbetrieb Ihr Schwedenhaus von A bis Z

Kontakt

Sie haben Fragen, Wünsche, Anregungen? Dann kontaktieren Sie uns. Am besten hier direkt über das Kontaktformular, ansonsten gerne per Email oder Telefon. Wir freuen uns auf Sie.

Baum 1 Baum 1 Baum 1
Natur Hintergrund
cookie