Berg Schwedenhaus Stadtvilla Herrenberg

Stadtvilla Schwedenhaus

eine offene Küche und einen großzügigen Essplatz zum Wohnzimmer hin.

Viel Platz auf kleiner Grundfläche

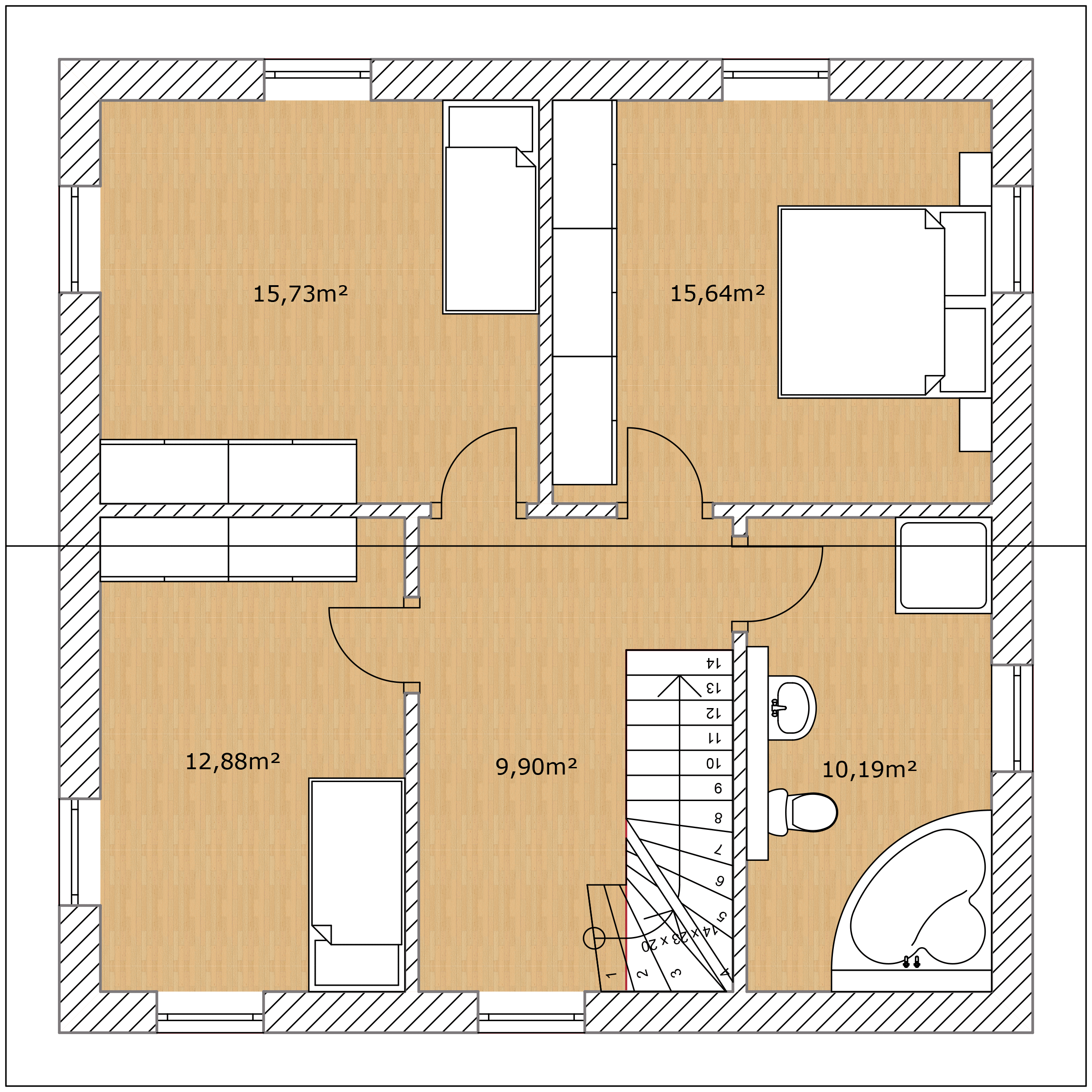
Das war die Maxime bei diesem Grundriss. Denn von den Abmessungen her passt dieses hübsche Schwedenhaus auch auf etwas kleinere Grundstücke z. B. in der Stadt. Das Haus bietet im Erdgeschoss eine offene Küche und einen großzügigen Essplatz zum Wohnzimmer hin. Durch die Terrassentüren gelangen Sie in den Garten. Wie es in Schweden üblich ist, gibt es auch bei der Nordkap Stadtvilla ein Bad mit Badewanne als auch ein Bad mit Dusche.

Interesse?
Fragen Sie uns einfach!

Eckdaten

  • 140 m² Wohnfläche
  • Satteldachhaus
  • Energieklasse: A+
  • 4 Zimmer
  • 2 geschossig

Ausstattung EG

  • Zugang zur Terrasse
  • Gästebad

Ausstattung OG

  • 3 Schlafzimmer

Besonderheiten EG

  • offener Wohn-/Esszimmer
  • Eingangsveranda

Besonderheiten OG

  • großes Badezimmer
Aussendienst Berg Schwedenhaus GmbH

Berg Schwedenhaus GmbH

Wir planen und bauen für Sie als Familenbetrieb Ihr Schwedenhaus von A bis Z

Kontakt

Sie haben Fragen, Wünsche, Anregungen? Dann kontaktieren Sie uns. Am besten hier direkt über das Kontaktformular, ansonsten gerne per Email oder Telefon. Wir freuen uns auf Sie.

Baum 1 Baum 1 Baum 1
Natur Hintergrund
cookie